Sprzedam dom w centrum Jaktorowa
Chylice-Kolonia gm. Jaktorów Pokaż na mapie ›
Odświeżone: Środa, 31 Grudzień, 2025 12:40
660 000 zł
9429 zł/m2
Szczegóły ogłoszenia
- Kategoria: Domy / Sprzedaż
- Powierzchnia:70 m2
- Liczba pokoi:2 pokoje
- Pow. działki:664 m2
- Rynek:Pierwotny
- Rok budowy:2026
- Stan:Do zamieszkania
- Forma kuchni:Oddzielna
- Typ domu:Wolnostojący
- Sprzedaż:Bez pośredników
- Inf. dodatkowe:Taras, Ogródek
- Cena: 660 000 zł / 9429 zł/m2
- Ulica: Wojska Polskiego
Opis oferty
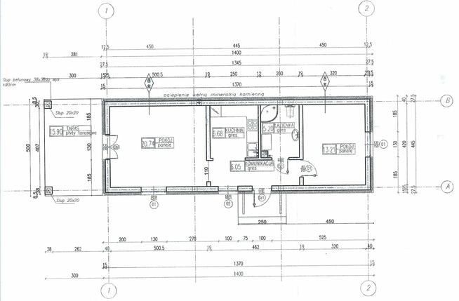
Dom jednokondygnacyjny dwupokojowy o powierzchni zabudowy 70 m2 w centrum gminy Jaktorów, w miejscowości Chylice-Kolonia. W bliskiej okolicy stacja PKP, przystanek autobusowy, Urząd Gminy, posterunek policji, apteka, przychodnia POZ, szkoła, sklepy i supermarket.Oferta dotyczy sprzedaży działki wraz z wybudowaniem na nim domu w stanie deweloperskim. Działka położona w spokojnej okolicy mimo bliskości usług. Lokalizacja w bocznej uliczce (Wojska Polskiego) prowadzącej do drogi głównej.
Wszystkie pozwolenia zostały wydane. Roboty budowlane zostały rozpoczęte. Budowa samego domu planowana jest na przełom 1 i 2 kwartału, a czas realizacji to 3-5 miesięcy.
Dom:
Powierzchnia zabudowy bez tarasu: 5 x 14 m
Powierzchnia tarasu: 5 x 3 m
Wykonany z termotonu 25 cm
Docieplony wełną mineralną kamienną i styropianem 15 cm
Dach kryty blachodachówką
Ogrzewanie za pomocą gazu lub pompy ciepła (wybiera klient).
Pomieszczenia:
Salon: 20,74 m2
Sypialnia: 13,21 m2
Kuchnia: 6,68 m2 (mozliwość połącznia kuchni z salonem)
Łazienka: 5,20 m2
Hall: 5,05 m2
Działka:
Powierzchnia: 664 m2
Wymiary: 11 x 60 m
Dojazd utwardzony
Media: szambo, prąd, gaz, wkrótce: woda miejska
Sąsiedztwo (pieszo):
PKP: 4 min.
Przystanek autobusowy GPA: 3 min.
Apteka: 3 min.
Urząd Gminy: 4 min.
Piekarnia: 3 min.
Szkoła Podstawowa: 5 min.
Kościół: 5 min.
Supermarket (Netto): 8 min.
Sklep (Żabka): 8 min.
Istnieje możliwość wykończenia domu za dopłatą.
Sprawdź zainteresowanie tym ogłoszeniem
Wyświetlenia
Data dodania
Ostatnio widziany
Obserwujących
Wysłane zapytania
Odsłony telefonu
Powiadom o podobnych ogłoszeniach
Lokalizacja: Chylice-Kolonia
Kategoria: Nieruchomości » Domy » Sprzedaż
Cena: od 561000 zł do 759000 zł Powierzchnia : od 60 m2 do 81 m2
Chcę otrzymywać powiadomienia o nowych ofertach
MARIUSZ
Konto prywatne
Na Lento.pl od 10 sty 2022
Strona użytkownika
- Wypromuj ogłoszenie
- Zgłoś naruszenie
- Drukuj ulotkę
- Edytuj/usuń ogłoszenie
- Udostępnij ogłoszenie
- Dodaj na Facebook





